Teixeiro gañará un ximnasio máis amplo e moderno cun investimento de 182.746,35 euros


O Concello de Curtis dará un novo paso na modernización das súas infraestruturas deportivas coa ampliación do ximnasio municipal de Teixeiro, unha actuación incluída na Axenda Urbana dentro das políticas saudables impulsadas polo goberno local. A intervención contará cun orzamento de 182.746,35 euros e responde ao aumento de usuarios rexistrado nos últimos anos.
A obra en Teixeiro será a primeira fase dun plan máis amplo co que o executivo municipal pretende renovar os ximnasios públicos do municipio. Tras esta actuación, o seguinte obxectivo será acometer a ampliación das instalacións deportivas de Curtis, para a que o Concello xa traballa na procura de cofinanciación doutras administracións.
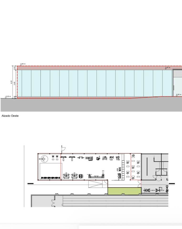
O proxecto deseñado para Teixeiro prevé, en primeiro lugar, ampliar lateralmente a sala actual do ximnasio, integrando parte da zona de aparcadoiro exterior para gañar espazo útil. Ademais, habilitarase unha nova sala polivalente mediante a cuberta do patio interior, que quedará conectada co paso xa existente e permitirá diversificar a oferta de actividades e clases dirixidas.
A intervención tamén inclúe unha renovación integral das instalacións, con novos sistemas de iluminación LED, climatización máis eficiente e adaptación ás normativas vixentes en materia de protección contra incendios. O plan complétase con melloras na ventilación e na distribución interior, co propósito de ofrecer máis comodidade e funcionalidade ás persoas usuarias.
Desde o goberno local destacan que a elevada ocupación dos ximnasios municipais evidencia o interese crecente da veciñanza por hábitos de vida saudables, pero tamén obriga a adaptar os espazos ás necesidades actuais. Neste sentido, subliñan que o obxectivo é garantir instalacións cómodas, seguras e preparadas para asumir a demanda.
Con esta actuación, Curtis reforza a súa aposta por un modelo de municipio saudable, no que o acceso ao deporte e a mellora dos servizos públicos se converten en ferramentas clave para favorecer a calidade de vida e contribuír a fixar poboación no rural.